Với diện tích vuông vức, thiết kế nhà phố 9x9m mang lại lợi thế lớn về công năng và thẩm mỹ. Đây là lựa chọn lý tưởng cho gia đình muốn sở hữu không gian sống khoa học, hiện đại và thoáng đãng. Ngôi nhà 9x9m cho phép bố trí phòng khách rộng rãi, phòng bếp thoáng mát, nhiều phòng ngủ tiện nghi, gara ô tô, thậm chí cả sân vườn hoặc sân thượng xanh mát. Đây cũng là kích thước hợp phong thủy, mang lại sự cân bằng về hình khối. An Khoa Design với kinh nghiệm nhiều năm trong lĩnh vực thiết kế kiến trúc, luôn mang đến giải pháp tối ưu. Chúng tôi chú trọng khai thác lợi thế diện tích, kết hợp mặt tiền đẹp mắt cùng bản vẽ công năng hợp lý, đảm bảo ngôi nhà vừa thẩm mỹ vừa tiện nghi.
Ưu điểm nổi bật của thiết kế nhà phố 9x9m
So với các mẫu nhà phố diện tích hẹp, thiết kế nhà phố 9x9m mang đến nhiều ưu điểm nổi bật. Diện tích vuông vắn giúp việc phân chia công năng trở nên khoa học, tạo sự hài hòa giữa các không gian. Phòng khách, bếp và phòng ngủ đều rộng rãi, thoáng sáng. Đặc biệt, mặt tiền 9m cân đối, dễ dàng ứng dụng nhiều phong cách kiến trúc khác nhau như hiện đại, tân cổ điển hay tối giản.



Nhờ sở hữu diện tích thoải mái, thiết kế nhà phố 9x9m cho phép gia chủ tích hợp nhiều tiện ích như gara ô tô, sân vườn nhỏ phía trước hoặc bên hông, ban công rộng rãi và cả giếng trời thông thoáng. Những yếu tố này không chỉ mang đến sự tiện nghi trong sinh hoạt mà còn góp phần tối ưu ánh sáng và gió tự nhiên cho toàn bộ ngôi nhà. Việc tận dụng nguồn sáng và thông gió tự nhiên giúp không gian luôn mát mẻ, trong lành, đồng thời tiết kiệm đáng kể chi phí năng lượng. Đây cũng là xu hướng thiết kế xanh, hiện đại, được nhiều gia đình lựa chọn để nâng cao chất lượng cuộc sống và tạo môi trường sống gần gũi hơn với thiên nhiên.




Xu hướng thiết kế nhà phố 9x9m năm 2026
- Nhà phố 9x9m mang ưu thế diện tích vuông vức, dễ bố trí công năng khoa học và tiện nghi.
- Phong cách hiện đại, Bắc Âu và tân cổ điển được nhiều gia đình lựa chọn trong năm 2026.
- Mặt tiền rộng 9m cho phép sử dụng kính lớn, ban công xanh và hệ lam che nắng tinh tế.
- Không gian trong nhà được phân chia hợp lý với phòng khách, bếp ăn mở và nhiều phòng ngủ.
- Giải pháp lấy sáng, đón gió tự nhiên giúp không gian thoáng mát và tiết kiệm năng lượng.
- Xu hướng xanh hóa tiếp tục phát triển với tiểu cảnh, giếng trời và sân thượng trồng cây xanh.



Trong năm 2026, xu hướng thiết kế nhà phố tập trung vào sự cân bằng giữa thẩm mỹ và công năng. Các mẫu nhà đẹp ưu tiên không gian mở, tận dụng ánh sáng tự nhiên, đồng thời kết hợp yếu tố xanh để mang lại môi trường sống trong lành, gần gũi thiên nhiên. Kiến trúc hiện đại và tối giản được ưa chuộng nhờ vẻ đẹp tinh tế, dễ ứng dụng, trong khi tân cổ điển và Bắc Âu vẫn giữ sức hút riêng bởi sự sang trọng và ấm áp. Bản vẽ công năng hướng đến sự tiện nghi, tiết kiệm diện tích nhưng vẫn đảm bảo sự thoải mái cho từng thành viên trong gia đình.





Giải pháp mặt tiền nhà phố 9x9m
Phong cách hiện đại
Phong cách hiện đại là lựa chọn phổ biến trong thiết kế nhà mặt tiền 9m x 9m. Kiến trúc vuông vắn, mảng kính lớn và tone màu trung tính như trắng, xám, đen tạo nên vẻ đẹp tinh tế.
Ban công rộng rãi kết hợp lan can kính trong suốt hoặc sắt nghệ thuật giúp không gian thoáng sáng, mở rộng tầm nhìn và tạo sự kết nối với thiên nhiên. Với lợi thế nhà ngang 9m sâu 9m, kiến trúc dễ dàng bố trí nhiều cửa kính lớn, mang lại nguồn sáng tự nhiên và gió trời dồi dào. Các khối nhà vuông vắn, đường nét khỏe khoắn không chỉ tôn lên vẻ đẹp hiện đại mà còn phù hợp xu hướng sống năng động, trẻ trung của gia đình hiện đại.







Phong cách tân cổ điển
Mặt tiền phong cách tân cổ điển trong thiết kế nhà phố 9x9m thường gây ấn tượng nhờ những đường phào chỉ tinh xảo, hệ cột trụ vững chãi và ban công uốn cong mềm mại. Gam màu trắng kem chủ đạo mang lại sự sang trọng, đồng thời làm nổi bật nét bề thế của công trình. Với diện tích vuông vức, ngôi nhà giữ được sự cân đối trong bố cục, vừa đảm bảo công năng khoa học vừa thể hiện gu thẩm mỹ đẳng cấp. Đây là lựa chọn lý tưởng cho gia chủ yêu thích phong cách thanh lịch, tinh tế và khẳng định vị thế của mình.







Phong cách Bắc Âu tối giản
Phong cách Bắc Âu chú trọng sự tinh gọn, công năng và ánh sáng tự nhiên. Gam màu trắng, be sáng kết hợp chất liệu gỗ tạo nên không gian ấm áp, gần gũi.
Thiết kế tối giản nhưng tinh tế này rất phù hợp với gia đình trẻ, yêu thích sự nhẹ nhàng, hiện đại và thoải mái trong sinh hoạt hàng ngày.






Bản vẽ mặt bằng công năng khoa học
Tầng trệt
Trong thiết kế nhà phố 9x9m, tầng trệt thường được bố trí gara ở phía trước để thuận tiện cho việc di chuyển và đỗ xe. Ngay sau đó là phòng khách rộng rãi, đặt gần cửa chính, vừa dễ dàng đón ánh sáng tự nhiên vừa tạo cảm giác sang trọng khi bước vào nhà. Không gian phòng khách thường được liên thông trực tiếp với khu vực bếp – ăn, giúp tăng sự kết nối và tạo sự thuận tiện trong sinh hoạt hàng ngày. Cách bố trí mở này không chỉ mang đến sự thông thoáng cho toàn bộ tầng trệt mà còn tối ưu diện tích sử dụng. Ở phía cuối nhà, WC được sắp xếp gọn gàng, đảm bảo sự riêng tư và giữ cho tổng thể không gian luôn ngăn nắp, tiện lợi cho các thành viên.







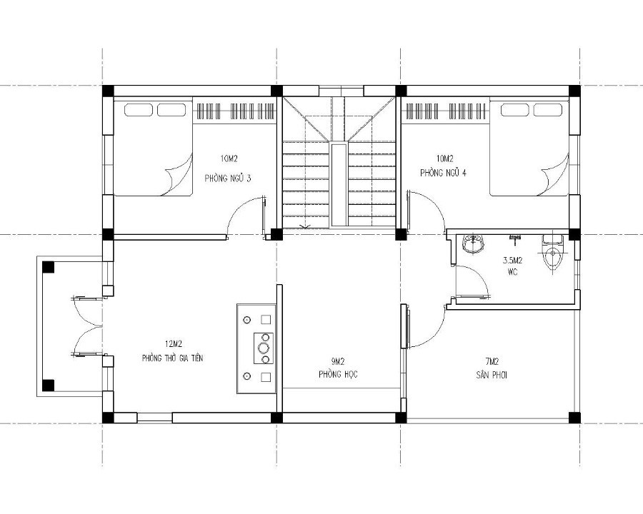
Tầng lầu
Tầng lầu trong thiết kế nhà phố 9x9m thường được bố trí khoa học để đáp ứng nhu cầu sinh hoạt của cả gia đình. Thông thường sẽ có từ 3 đến 4 phòng ngủ rộng rãi, trong đó phòng ngủ master được ưu tiên diện tích lớn hơn, có WC riêng khép kín và ban công thoáng sáng, mang lại sự riêng tư và tiện nghi. Các phòng ngủ còn lại được phân chia diện tích hợp lý, đảm bảo thoải mái cho từng thành viên. Ở vị trí trung tâm, phòng sinh hoạt chung được sắp xếp để trở thành nơi cả nhà cùng trò chuyện, thư giãn và gắn kết. Ngoài ra, tùy nhu cầu, gia chủ có thể bố trí thêm một phòng làm việc nhỏ gọn hoặc phòng học cho con, giúp không gian tầng lầu vừa tiện nghi vừa linh hoạt.







Sân thượng
Sân thượng đóng vai trò như không gian thư giãn của cả gia đình. Nơi đây có thể kết hợp trồng cây xanh, bố trí bàn trà hoặc giàn hoa.
Đồng thời, phòng thờ và khu giặt phơi thường đặt ở tầng này để đảm bảo tiện nghi và phong thủy.






Nội thất các phòng trong thiết kế nhà phố 9x9m
Phòng khách
Phòng khách trong thiết kế nhà phố 9x9m thường được đặt ở vị trí trung tâm, tạo sự kết nối trực tiếp với khu bếp – ăn để không gian luôn thông thoáng và tiện lợi cho sinh hoạt gia đình. Với lợi thế ngang 9m, căn phòng trở nên rộng rãi, dễ dàng bố trí nhiều chức năng mà vẫn giữ sự cân đối.
Nội thất phổ biến thường là bộ sofa chữ L êm ái, bàn trà nhỏ gọn và kệ tivi tối giản, mang lại cảm giác gọn gàng nhưng sang trọng. Cửa kính lớn cùng rèm nhẹ nhàng giúp ánh sáng tự nhiên tràn ngập, làm cho phòng khách luôn sáng sủa, hiện đại và tạo bầu không khí ấm cúng cho những buổi sum họp.






Bếp và phòng ăn
Trong thiết kế nhà phố 9x9m, khu bếp – ăn thường được bố trí theo dạng mở, tạo sự liên kết liền mạch với phòng khách, giúp không gian sinh hoạt trở nên rộng rãi và thoáng sáng hơn. Bàn ăn bằng gỗ tự nhiên, bàn gấp gọn hoặc loại bàn tích hợp tủ thông minh thường được ưu tiên sử dụng để tiết kiệm diện tích mà vẫn giữ được sự tiện nghi.
Hệ tủ bếp âm tường kết hợp cùng các thiết bị hiện đại không chỉ mang đến sự gọn gàng mà còn hỗ trợ quá trình nấu nướng hiệu quả. Gam màu sáng hoặc kết hợp chất liệu gỗ ấm áp giúp căn bếp luôn hài hòa, gần gũi, đồng thời tạo cảm giác ấm cúng cho những bữa cơm gia đình.






Phòng ngủ
Phòng ngủ trong thiết kế nhà phố 9x9m thường được bố trí rộng rãi và thoáng đãng, mang lại cảm giác thư giãn trọn vẹn sau những giờ làm việc bận rộn. Nhờ có ban công hoặc cửa sổ lớn, không gian luôn tràn ngập ánh sáng tự nhiên, đồng thời đón gió mát để căn phòng luôn trong lành.
Nội thất cơ bản gồm giường ngủ êm ái, tủ quần áo âm tường gọn gàng và bàn làm việc nhỏ phù hợp nhu cầu cá nhân. Gam màu nhẹ nhàng như trắng, be hay pastel thường được lựa chọn để tạo nên bầu không khí thư thái, giúp dễ dàng nghỉ ngơi và tái tạo năng lượng.






Phòng thờ và sinh hoạt chung
Ngày nay, nhiều gia đình lựa chọn thiết kế nhà phố 9x9m bởi sự cân đối trong diện tích và công năng. Ngôi nhà vuông vắn không chỉ dễ dàng sắp xếp không gian sinh hoạt mà còn mang lại vẻ đẹp thẩm mỹ hài hòa. Từ phòng khách, bếp – ăn đến các phòng ngủ, tất cả đều có thể bố trí rộng rãi và thoáng sáng. Đây chính là giải pháp tối ưu cho cuộc sống hiện đại, vừa tiện nghi, vừa gần gũi với thiên nhiên.








Lời kết
Có thể thấy, thiết kế nhà phố 9x9m mang lại nhiều lợi thế: công năng khoa học, mặt tiền đẹp mắt và không gian sống tiện nghi. Đây là mẫu nhà phù hợp xu hướng hiện đại.

An Khoa Design tự tin đồng hành cùng khách hàng, từ ý tưởng ban đầu đến thi công hoàn thiện. Với kinh nghiệm và sự tận tâm, chúng tôi mang đến bản vẽ tối ưu, phù hợp nhu cầu và phong thủy.
👉 Liên hệ ngay để được tư vấn chi tiết:
📞 Hotline: 0901 293 693
🌐 Website: ankhoadesign.com.vn
📌 Địa chỉ: 2/7 Trung Lang, Phường Bảy Hiền (Phường 12, Quận Tân Bình), TP. Hồ Chí Minh.
Tìm hiểu thêm:
Xây nhà phố
Cải tạo nhà phố



