Thiết kế nhà phố 7x14m đang ngày càng được nhiều gia chủ lựa chọn tại các đô thị lớn nhờ diện tích vừa vặn, dễ bố trí công năng và chi phí xây dựng hợp lý. Với tổng diện tích khoảng 98m², mẫu nhà này cho phép sắp xếp linh hoạt cả không gian sinh hoạt chung, phòng riêng, đảm bảo sự tiện nghi mà vẫn tối ưu diện tích. Trong bài viết, An Khoa Design sẽ gợi ý các giải pháp về mặt tiền, bản vẽ công năng và thiết kế nội thất cho nhà phố 7x14m – giúp bạn có định hướng rõ ràng trước khi bắt tay xây dựng.
Đặc điểm nổi bật của thiết kế nhà phố 7x14m
Với chiều ngang 7m và chiều sâu 14m, việc thiết kế nhà phố 7x14m được đánh giá là có tỷ lệ cân đối, phù hợp với nhiều phong cách kiến trúc khác nhau. Mặt tiền không quá hẹp nên gia chủ có thể linh hoạt lựa chọn từ hiện đại, tối giản cho đến tân cổ điển mà vẫn giữ được vẻ hài hòa. Chiều sâu 14m mang lại lợi thế trong việc phân chia công năng khoa học, cho phép bố trí gara, phòng khách, bếp – ăn và các phòng ngủ một cách hợp lý. Nhờ vậy, không gian sống vừa đảm bảo tiện nghi cho gia đình, vừa thể hiện được cá tính và gu thẩm mỹ riêng của gia chủ.



Điểm cộng lớn của thiết kế nhà phố 7x14m là khả năng tận dụng ánh sáng và thông gió tự nhiên. Nếu bố trí giếng trời hoặc sân sau nhỏ, ngôi nhà sẽ luôn thoáng mát, giảm tiêu hao năng lượng. Bên cạnh đó, diện tích này cũng dễ dàng xây dựng 2 – 3 tầng, đáp ứng nhu cầu sinh hoạt của gia đình nhiều thế hệ.



Giải pháp thiết kế mặt tiền nhà phố 7x14m
Mặt tiền phong cách hiện đại
Trong phong cách hiện đại, thiết kế nhà phố 7x14m thường chú trọng đến các mảng khối vuông vức cùng đường nét tối giản, tạo nên vẻ đẹp trẻ trung và sang trọng. Những vật liệu được ưa chuộng bao gồm kính cường lực, gạch ốp giả đá hoặc lam gỗ, vừa đảm bảo tính thẩm mỹ vừa tăng độ bền cho công trình. Khi kết hợp các gam màu chủ đạo như trắng, xám cùng điểm nhấn gỗ tự nhiên, mặt tiền ngôi nhà trở nên hài hòa, gần gũi nhưng vẫn toát lên sự tinh tế và hiện đại, phù hợp xu hướng kiến trúc năm 2025.






Mặt tiền phong cách tân cổ điển
Nếu gia chủ yêu thích sự sang trọng và đẳng cấp, thiết kế nhà phố mặt tiền 7m sâu 14m theo phong cách tân cổ điển sẽ là lựa chọn lý tưởng. Mặt tiền được nhấn mạnh bởi những chi tiết phào chỉ tinh xảo, lan can sắt hoa văn uốn lượn và hệ cột trụ vững chãi, tạo nên vẻ đẹp uy nghi, bề thế. Tông màu trắng kem hoặc be thường được sử dụng để làm nổi bật sự tinh tế, đồng thời giữ được độ bền màu theo thời gian. Nhờ đó, ngôi nhà không chỉ mang tính thẩm mỹ cao mà còn thể hiện được gu thẩm mỹ và vị thế của gia chủ.






Mặt tiền phong cách tối giản
Trong phong cách tối giản, thiết kế nhà phố 7x14m tập trung vào sự gọn gàng và cân đối tổng thể. Thay vì những chi tiết cầu kỳ, rườm rà, kiến trúc sư ưu tiên các mảng tường phẳng, cửa kính lớn và gam màu trung tính như trắng, xám hoặc be. Cách thiết kế này không chỉ mang đến vẻ đẹp tinh tế, nhẹ nhàng mà còn giúp không gian thêm thoáng đãng, tận dụng ánh sáng tự nhiên tối đa. Đây được xem là giải pháp tối ưu cho những gia đình yêu thích sự đơn giản, hiện đại và mong muốn rút ngắn thời gian, chi phí thi công.





Bản vẽ mặt bằng công năng khoa học
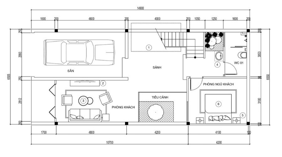
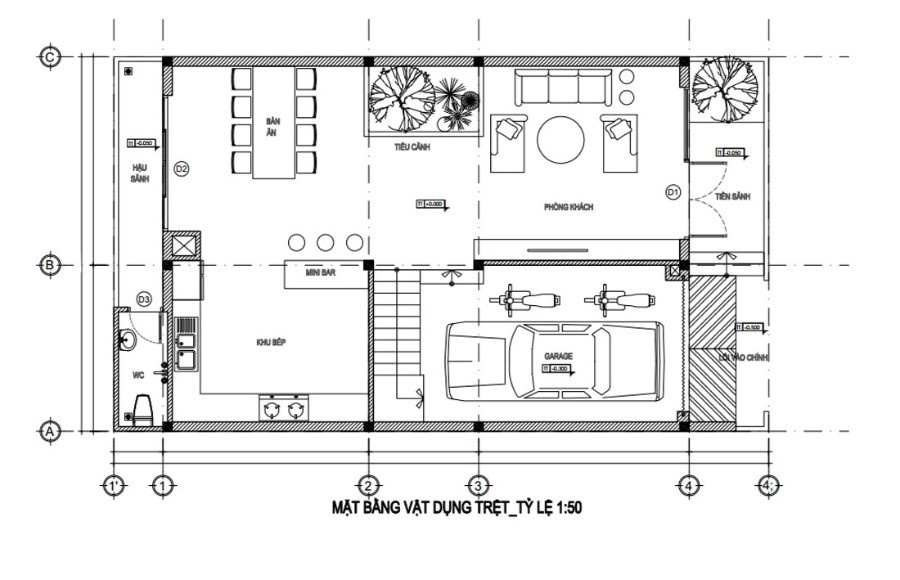
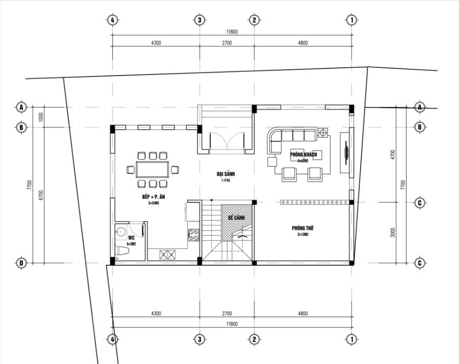
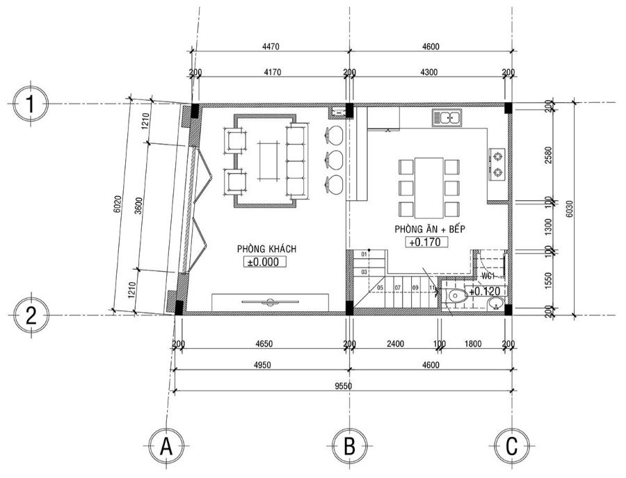
Tầng 1: Gara, phòng khách, bếp – ăn
Ở tầng trệt, thiết kế nhà phố 7x14m thường được sắp xếp theo lối mở để tận dụng tối đa diện tích. Phía trước có thể bố trí gara ô tô hoặc xe máy thuận tiện cho việc đi lại. Ngay sau đó là phòng khách liên thông cùng khu bếp – ăn, tạo nên không gian rộng rãi, liền mạch và dễ dàng kết nối các thành viên trong gia đình. Cầu thang thường đặt ở vị trí trung tâm, kết hợp giếng trời lấy sáng tự nhiên, vừa giúp ngôi nhà luôn thông thoáng, vừa mang lại cảm giác gần gũi với thiên nhiên.





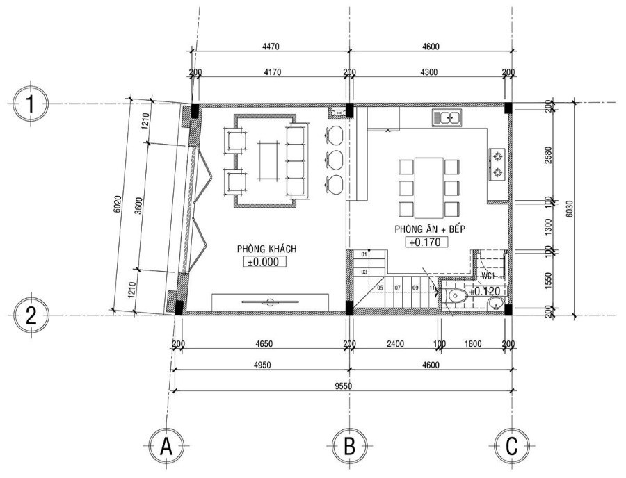
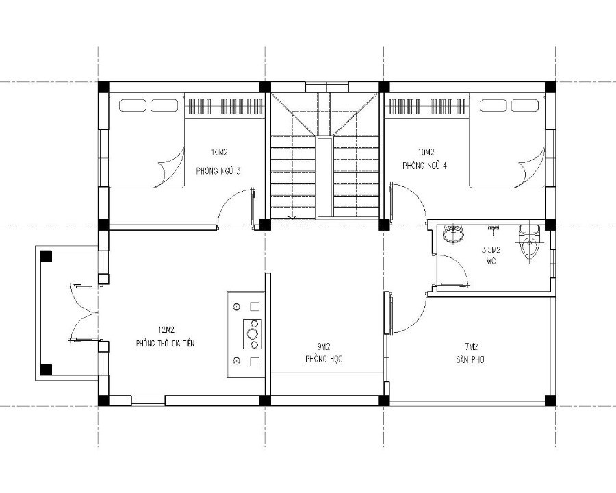
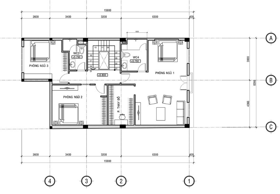
Tầng 2: Phòng ngủ và phòng sinh hoạt chung
Ở tầng 2, thiết kế nhà phố 7x14m thường bố trí 2–3 phòng ngủ, trong đó có một phòng master tiện nghi. Khu sinh hoạt chung đặt ở giữa tạo không gian kết nối và thư giãn cho gia đình. Ban công trước nhà giúp đón gió, ánh sáng, mang lại sự thoáng đãng cho toàn bộ tầng.





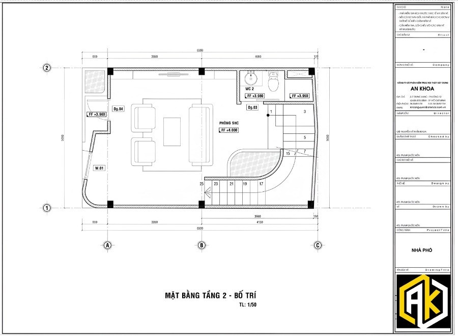
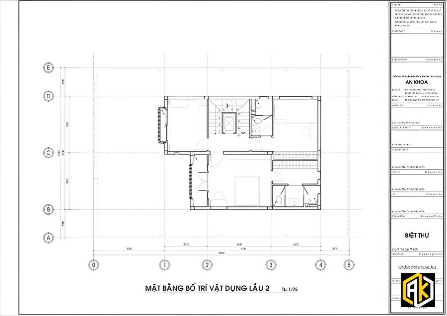
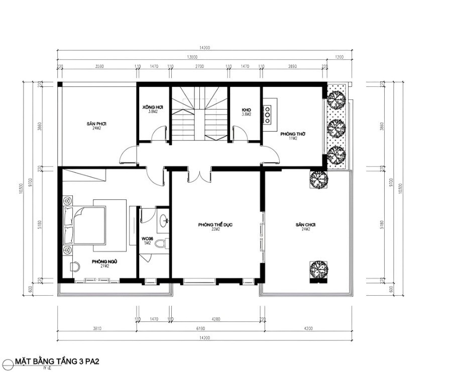
Tầng 3: Phòng thờ, sân thượng và sân phơi
Ở tầng 3, thiết kế nhà phố 7x14m thường dành không gian cho phòng thờ trang nghiêm và yên tĩnh. Phía sau là sân thượng kết hợp sân phơi, vừa đáp ứng nhu cầu sinh hoạt, vừa có thể bố trí cây xanh tạo góc thư giãn. Đây cũng là nơi lý tưởng để cả gia đình tận hưởng không khí trong lành.






Gợi ý nội thất cơ bản cho nhà phố 7x14m
Nội thất phòng khách
Trong thiết kế nhà phố 7x14m, phòng khách nên sử dụng sofa chữ L hoặc sofa nhỏ gọn để tối ưu diện tích. Gam màu trung tính kết hợp điểm nhấn từ gối ôm hay tranh treo tường sẽ tạo sự hài hòa. Hệ thống đèn trần và đèn led hắt sáng giúp không gian thêm sang trọng và ấm cúng.




Nội thất phòng bếp – ăn
Khi bố trí không gian bếp trong thiết kế nhà phố 7x14m, gia chủ có thể lựa chọn kiểu tủ bếp chữ L gọn gàng hoặc chữ U rộng rãi tùy theo thói quen sử dụng. Bàn ăn đặt cạnh cửa sổ hay giếng trời sẽ giúp tận dụng ánh sáng tự nhiên và tạo sự thoáng mát. Vật liệu phổ biến hiện nay là gỗ công nghiệp phủ laminate, vừa mang lại vẻ đẹp hiện đại, vừa dễ vệ sinh và có độ bền cao.




Nội thất phòng ngủ
Phòng ngủ master nên ưu tiên sự ấm cúng và tiện nghi. Giường gỗ tự nhiên, tủ quần áo âm tường và cửa sổ rộng sẽ tạo cảm giác thoải mái. Phòng ngủ nhỏ có thể thiết kế giường tầng hoặc tủ kết hợp bàn học để tiết kiệm diện tích.





Lời kết
Thiết kế nhà phố 7x14m mang lại sự cân bằng giữa công năng, thẩm mỹ và chi phí. Gia chủ có thể lựa chọn phong cách hiện đại, tân cổ điển hay tối giản để phù hợp sở thích. Với kinh nghiệm nhiều năm trong lĩnh vực thiết kế, An Khoa Design cam kết mang đến giải pháp tối ưu, tiết kiệm chi phí và đảm bảo sự tinh tế trong từng chi tiết. Chúng tôi chú trọng công năng, thẩm mỹ và lắng nghe mong muốn của khách hàng để đưa ra phương án phù hợp nhất. Liên hệ hotline 0901 293 693 để được tư vấn cụ thể.
Tìm hiểu thêm:
Xây nhà phố
Cải tạo nhà phố



